Plan
参考モデルプラン
サイエンスホームでは家族構成やライフスタイルに合わせて最適なプランをご提案しております。
こちらでは、サイエンスホームで⼈気の3 つの基本プランを図⾯・価格とともにご紹介いたします。
ぜひあなたのプラン作成にお役⽴てください。
※お⾒積もりは、全ての家具(⾷器棚・ダイニングテーブル・TV 台・ソファーなど)や仮設管理費・外部給排⽔は含みませんのでご注意ください。
One-story house
平屋スタイル
(1階建て)
価格:1,700万円台〜
※
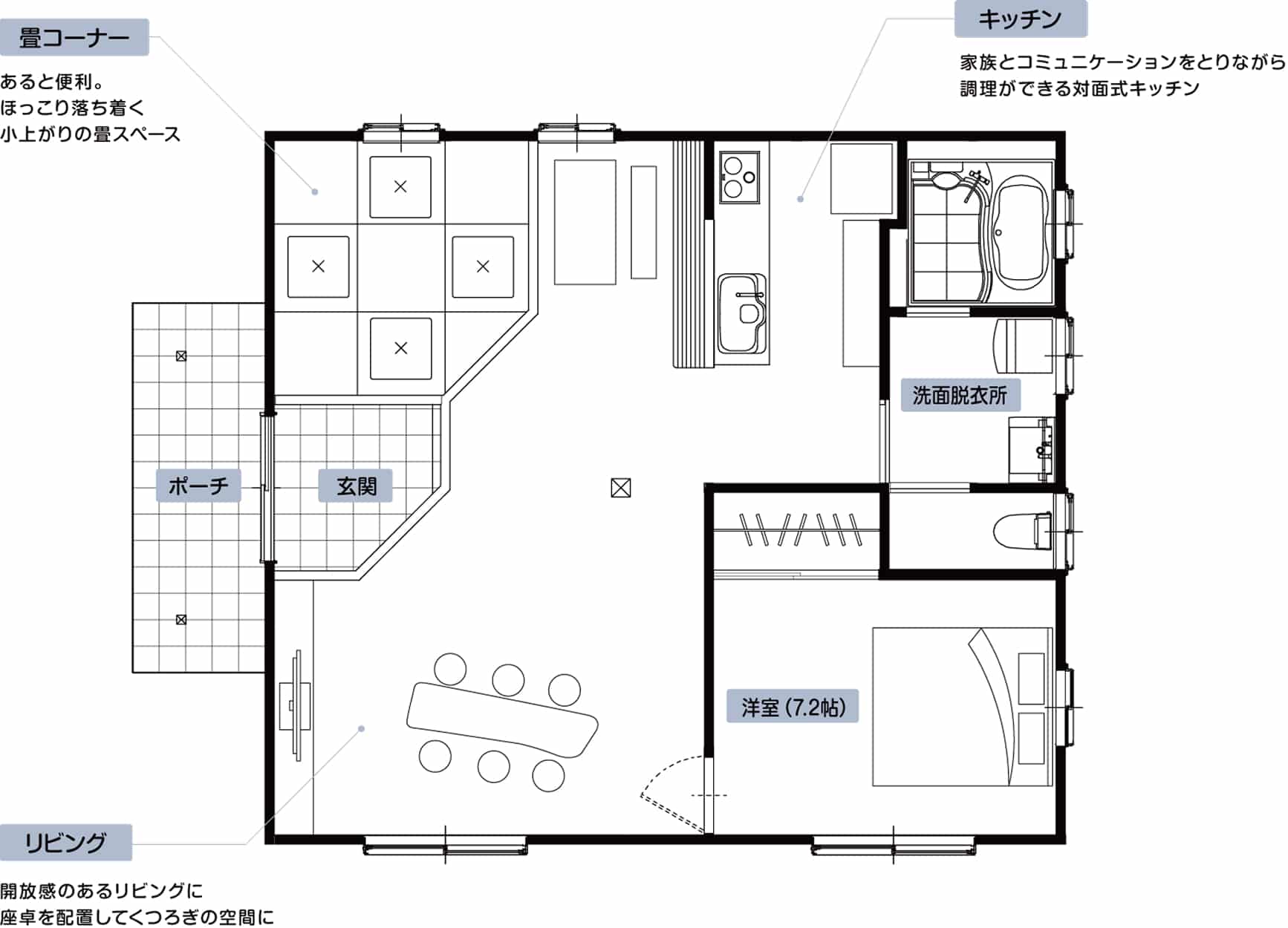
シングルライフやセカンドライフを楽しみたい方におススメの1階建ての基本プラン。
構造的にもっとも強く暮らしやすい平屋は、離れや隠れ家、小家族にも人気です。

例/8×9type 72.00㎡(21,78坪)
※広島県で建てた場合の建物本体参考価格(カウンター含みます)/仮設管理費、外部給排水工事、設備費などは含みません/地域によって仕様・価格が異なります。
※昨今の木材費の高騰により、時期によって価格の変動がございます。詳しくは、お問い合わせください。
Loft-story house
ロフトスタイル
(1.5階建て)
価格:1,800万円台〜
※
2~4人家族にマッチした1.5階建ての基本プラン。
吹き抜け仕様でシンプル動線の間取りは、コンパクトなのに充分な広さが魅力です。

例/8×7type 1階:56.00m²(16.94坪)
ロフト:30.00m²(9.07坪)
合計:86.00m²(26.01坪)
※広島県で建てた場合の建物本体参考価格(ウッドデッキは含みません)/仮設管理費、外部給排水工事、設備費などは含みません/地域によって仕様・価格が異なります。
※昨今の木材費の高騰により、時期によって価格の変動がございます。詳しくは、お問い合わせください。
Two-story house
2階屋スタイル
(2階建て)
価格:2,100万円台〜
※
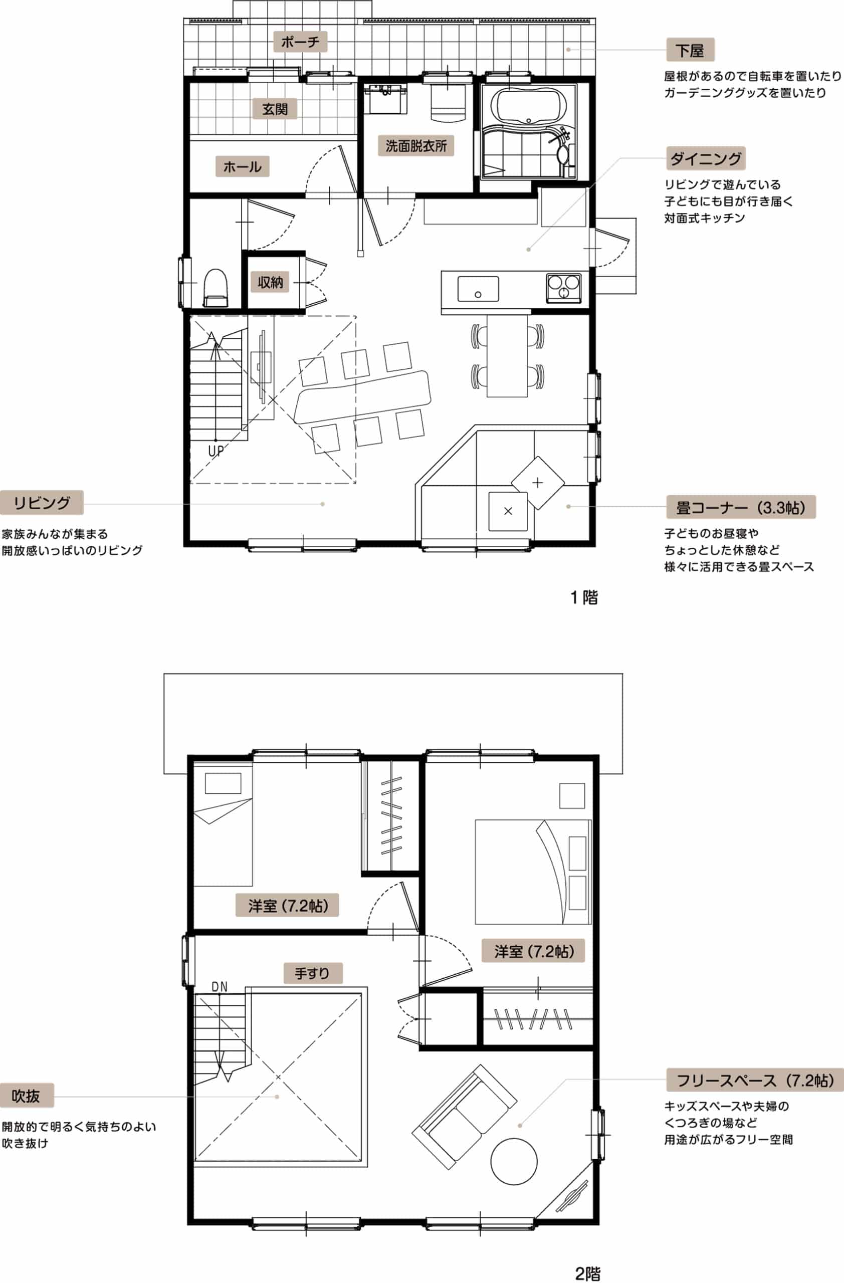
3人~5人家族の暮らしにちょうど良い総2階建ての基本プラン。
間取りによっては、二世帯住宅にも対応可能です。

例/8×7type 1階:56.00m²(16.94坪)
2階:56.00m²(16.94坪)
合計:112m²(33.88坪)
※広島県で建てた場合の建物本体参考価格/仮設管理費、外部給排水工事、設備費などは含みません/地域によって仕様・価格が異なります。
※昨今の木材費の高騰により、時期によって価格の変動がございます。詳しくは、お問い合わせください。